MOUNTING METHODS
Modulightor light fixtures are renowned for their sleek designs and versatile lighting solutions, making them a popular choice for both residential and commercial environments. A key aspect of their adaptability lies in the variety of mounting methods available, which allow these fixtures to seamlessly integrate into diverse architectural settings - both new and existing.
Whether the goal is to achieve a minimalist ceiling installation, highlight architectural features with wall mounting, or incorporate lighting into custom millwork, the right mounting technique plays a crucial role in the overall success of the lighting design.
Hard-Wired with a Plate
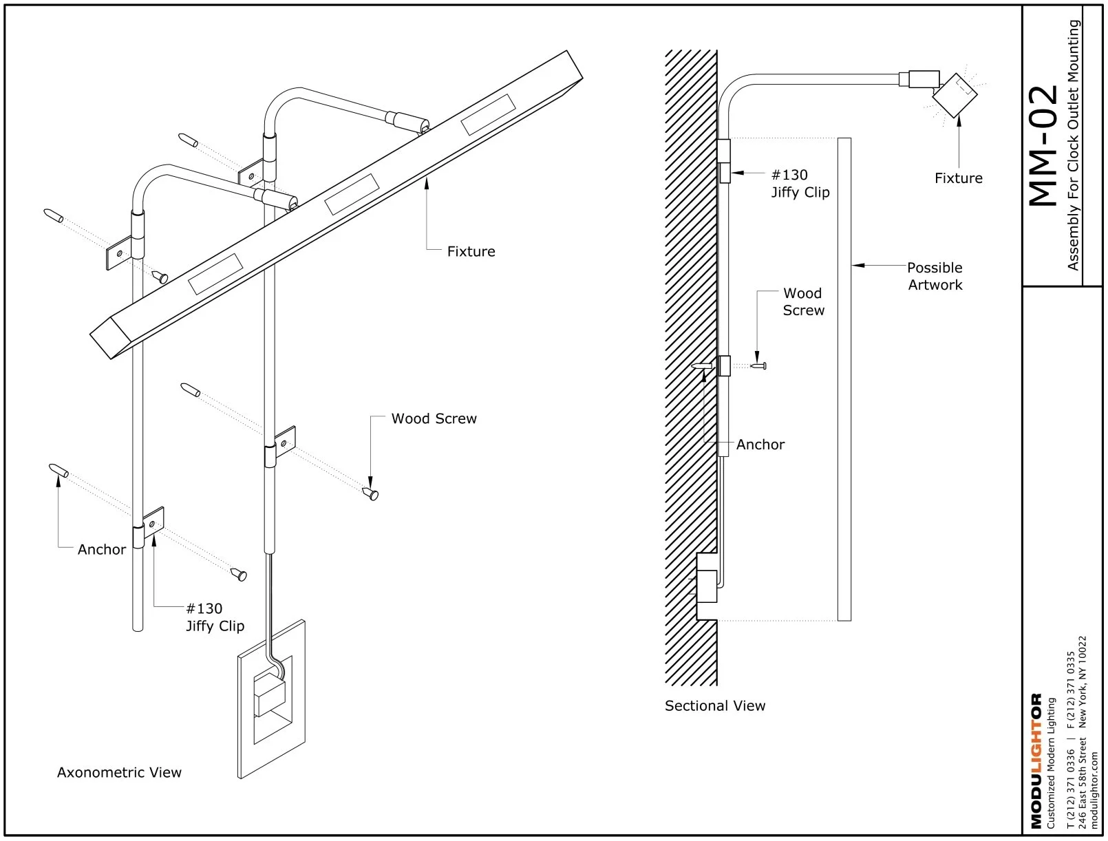
Plugged into an Outlet
Through a New or Existing Millwork Fascia
On Top / Under Existing Shelf
Ashkar Mounting
Screws Inside or Through Extrusion
Suspended with Aircraft Cable & Wire
